Vendu
PEB C
Partager

Maison, 187 m²

9 Grand Route B-6890 Transinne

4 Chambres 1 Salle de bain 1150 m² Terrain



Général

  • Nombre de chambre : 4

  • Nombre de salle de bain : 1

  • Jardin : Non

  • Garage : Non

  • Terrasse : Non

  • Parking : Non

  • Surface habitable : 187 m²

Intérieur

  • État général : À rafraîchir

  • Toilettes : 2

  • Cuisines : Semi-équipée

  • Châssis : PVC

  • Vitrage : Double vitrage

  • Chauffage (type) : C.C. au mazout

  • Chauffage (ind/coll) : Individuel

  • Cave : Oui

  • Grenier : Oui

Raccordement

  • Egout : Non

  • Électricité : Oui

  • Eau : Oui

Environnement

  • Environnement : Campagne

  • Orientation : Nord-est

Extérieur

  • Toiture : Toiture en pointe

  • Année de construction : 1959

  • Façade : 3 façades

Consommation et performance énergétique

  • E spec (Kwh/m²/an) : 253

  • E totale (Kwh/an) : 58194

  • Label PEB : C

  • Expiration du certificat énergétique : 08/06/2034

  • Code unique : 20240608012989

Calculer les droits d'enregistrement

Idéalement situé à moins d'une minute de l'autoroute E411, maison d'habitation 4 chambres construite dans les années 1950.

COMPOSITION :
REZ : Hall d'entrée avec vestiaire et accès à un WC séparé, desservant un grand séjour très lumineux grâce à ses grandes ouvertures et communicant avec un charmant salon équipé d'un feu ouvert, un bureau et une cuisine avec sa véranda.
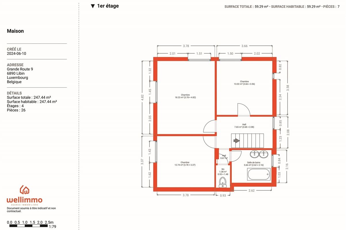
REZ+1
: 3 belles chambres lumineuses, un WC séparé et une salle de bain à rafraichir.
REZ+2 : 1 chambre et plus de 19 m² de greniers de rangement.
SOUS-SOL : caves sur plus de 40 m².

 
INFO + :

  • Chauffage central mazout (chaudière avec bruleur Weishaupt de 1995), en bon état de fonctionnement avec citerne à mazout neuve d'une capacité de 2500 litres, enterrée à l'extérieur ;
  • Eau chaude produite par des chauffes-eaux électriques ;
  • Toiture en ardoise naturelle avec isolation en laine minérale ;
  • Maçonnerie en bloc béton avec brique de parement dont le vide a été isolé par injection de mousse P.U. en 2014 ;
  • Évacuation des eaux usées via une fosse septique ;
  • Électricité à mettre en conformité, l'installation d'un nouveau compteur est à prévoir;
  • Châssis PVC double vitrage ;
  • RC = 721 €;
  • Non concerné par les aléas d'inondation ;
  • Affectation en zone d'habitat à caractère rural au plan de secteur ;
  • En zone d'assainissement autonome ;
  • Possibilité d'acquérir en option une parcelle de terrain supplémentaire d'environ 15 ares ;


Le propriétaire vendeur du bien dispose de la faculté, de manière totalement libre et autonome, de vendre ou ne pas vendre. S’il décide de vendre, il n'est nullement tenu de retenir l'offre la plus élevée mais choisit celle qui lui convient le mieux au regard de ses propres critères (montant de l'offre, conditions suspensives, délai de signature).

 

 

 

Calculer les droits d'enregistrement

Transinne façade.jpg
Transinne-15.jpg
Transinne-20.jpg
Transinne-14.jpg
Transinne-24.jpg
Transinne-29.jpg
Transinne-31.jpg
Transinne-39.jpg
Transinne-26.jpg
Transinne-35.jpg
Transinne-34.jpg
Transinne-36.jpg
Transinne-33.jpg
Transinne-37.jpg
Transinne-41.jpg
Transinne-38.jpg
Transinne-32.jpg
Transinne-30.jpg
transinne façade 2.jpg
Maison RDC.jpg
Maison 1er.jpg
Maison 2ème.jpg
Maison Sous-sol.jpg
Transinne-21 détourée.jpg

Visitez ce bien avec MAHIN Jérôme

GRAND ROUTE 9 TRANSINNE


    Découvrez nos biens similaires

    Nous contacter !