Vendu
PEB G
Partager

Bungalow, 89 m²

35 rue de la Paix B-6870 Saint-Hubert

1 Chambres 1 Salle de bain 406 m² Terrain



Général

  • Nombre de chambre : 1

  • Nombre de salle de bain : 1

  • Jardin : Oui

  • Surface du jardin : 406 m²

  • Garage : Oui

  • Terrasse : Oui

  • Parking : Oui

  • Surface habitable : 89 m²

Intérieur

  • État général : À rénover

  • Toilettes : 1

  • Cuisines : Non-équipée

  • Châssis : PVC

  • Chauffage (type) : Non communiqué

  • Chauffage (ind/coll) : Individuel

  • Cave : Non

  • Grenier : Non

Raccordement

  • Egout : Oui

  • Électricité : Oui

  • Eau : Oui

Environnement

  • Environnement : Résidentiel

Extérieur

  • Toiture : Non communiqué

  • Façade : 4 façades

Consommation et performance énergétique

  • E spec (Kwh/m²/an) : 674

  • E totale (Kwh/an) : 69210

  • Label PEB : G

  • Expiration du certificat énergétique : 31/12/2032

  • Code unique : 20221231002367

Calculer les droits d'enregistrement

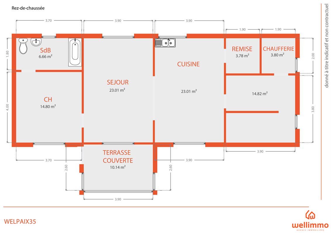
REZ: terrasse couverte, séjour, cuisine à équiper, chambre, salle de bain (baignoire, évier, wc), remise, espace chaufferie, une pièce 'environ 15 m², actuellement séparée en deux, qui pourrait être une seconde chambre.

INFOS+:
- garage en bardage bois (8,3X3m)
- électricité conforme (certificat valable jusqu'en 2037),
- châssis en PVC double vitrage récents,
- 2 cheminées fonctionnelles (poêle à pellet non compris dans la vente) 
- construit sur un soubassement en blocs béton,
- belle situation sur les hauteurs de Saint-Hubert, dans quartier calme.
- RC net de 488 euros, la réduction des droits d'enregistrements est donc possible (sous réserve de la confirmation du revenu cadastral par l'administration fiscale).

Calculer les droits d'enregistrement

1.jpg
2.jpg
3.jpg
4.jpg
5.jpg
6.jpg
7.jpg
8.jpg
9.jpg
10.jpg
11.jpg
12.jpg
13.jpg
14.jpg
15.jpg
16.jpg
17.jpg
18.jpg
19.jpg
20.jpg
21.jpg
22.jpg
23.jpg

Visitez ce bien avec BASTIEN Véronique

RUE DE LA PAIX 35 SAINT-HUBERT


    Découvrez nos biens similaires

    Nous contacter !