Vendu
PEB F
Partager

Maison, 166 m²

4 Chemin de la Croix Denis B-6921 Wellin Chanly

5 Chambres 1 Salle de bain 1120 m² Terrain



Général

  • Nombre de chambre : 5

  • Nombre de salle de bain : 1

  • Jardin : Oui

  • Garage : Oui

  • Terrasse : Oui

  • Parking : Oui

  • Surface habitable : 166 m²

Intérieur

  • État général : À rafraîchir

  • Toilettes : 2

  • Cuisines : Non-équipée

  • Châssis : Aluminium

  • Chauffage (type) : C.C. au mazout

  • Chauffage (ind/coll) : Individuel

  • Cave : Oui

  • Grenier : Oui

Raccordement

  • Egout : Oui

  • Électricité : Oui

  • Eau : Oui

Environnement

  • Environnement : Campagne

Extérieur

  • Toiture : Non communiqué

  • Année de construction : 1978

  • Façade : 4 façades

Consommation et performance énergétique

  • E spec (Kwh/m²/an) : 477

  • E totale (Kwh/an) : 107314

  • Label PEB : F

  • Expiration du certificat énergétique : 19/09/2033

  • Code unique : 20230919003760

Calculer les droits d'enregistrement

REZ: grand hall, bureau, véranda, grande pièce de séjour en L (salon et salle à manger), cuisine à équiper, salle de bain, WC séparé, 1 chambre. Accès à la terrasse.

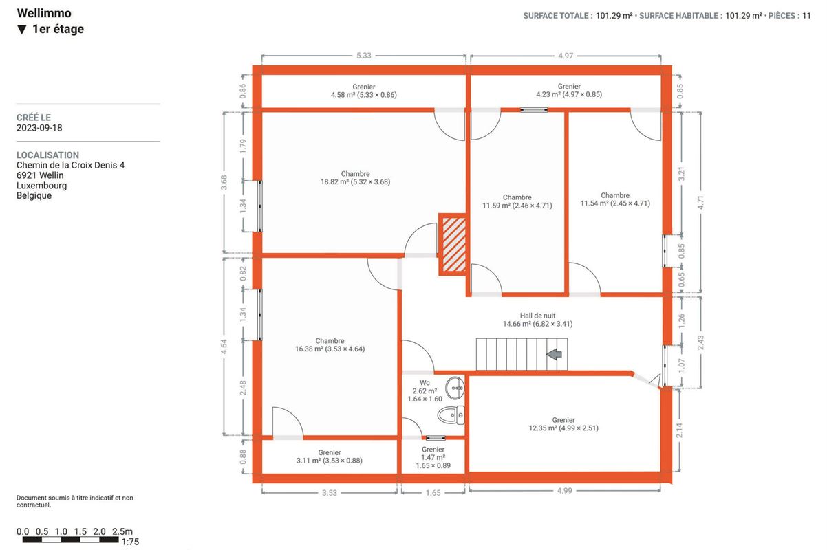
REZ+1: large hall distribuant 4 chambres, un wc séparé, un espace de grenier.

INFOS+:
- construction de 1978,
- grenier de rangement non aménageable,
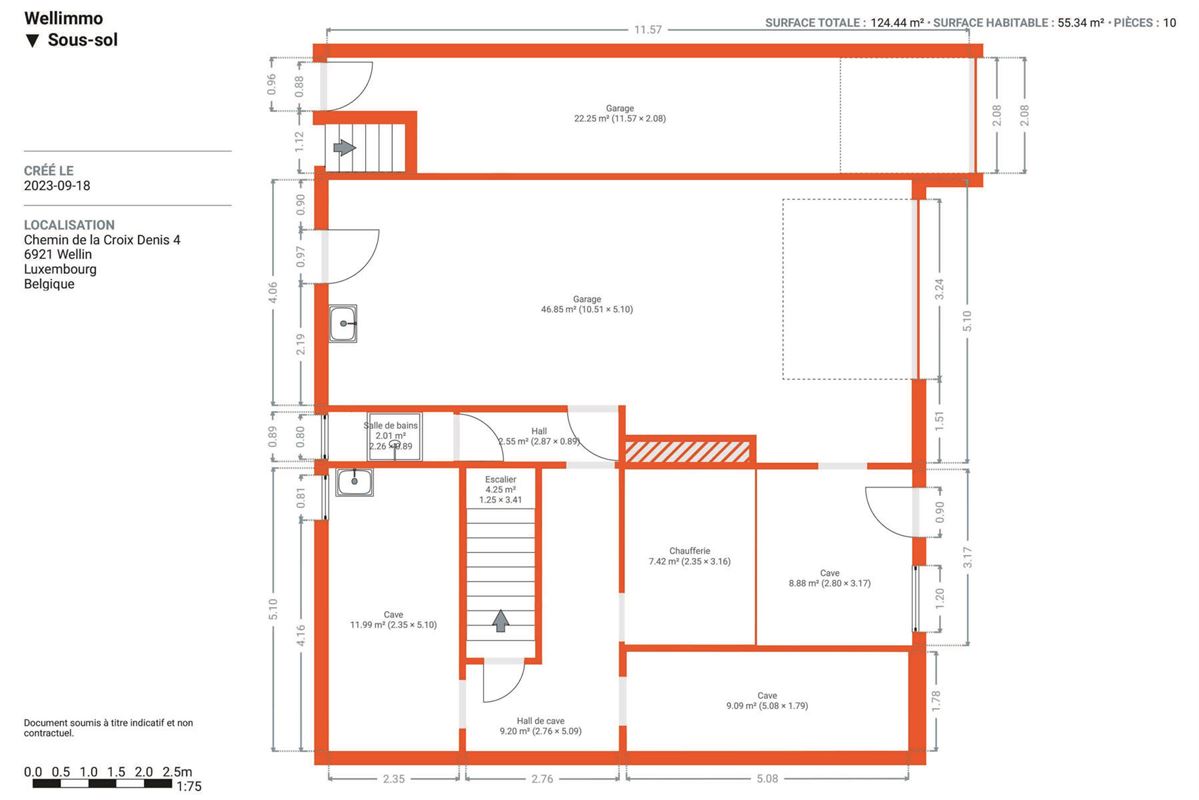
- garage 2 voitures, caves avec douche, atelier, chaufferie, sous tout le volume bâti,
- sur une parcelle de 11 ares 20 centiares, dans une rue en cul de sac,
- châssis en alu double vitrage,
- chauffage central mazout (chaudière environ 30 ans, brûleur et vase d'expansion récents), 2 citernes à mazout de 2.500 litres chacune,
- électricité simple horaire à mettre en conformité,
- toiture en Eternit, en état correct, non isolée,
- l'égout passe dans le rue, le raccordement du bâtiment devra être vérifié,
- RC net 884 euros.

Le propriétaire vendeur du bien dispose de la faculté, de manière totalement libre et autonome, de vendre ou ne pas vendre. S’il décide de vendre, il n’est nullement tenu de retenir l’offre la plus élevée mais choisit celle qui lui convient le mieux au regard de ses propres critères (montant de l’offre, conditions suspensives, délai de signature,…).

Calculer les droits d'enregistrement

1.jpg
2.jpg
3.jpg
4.jpg
5.jpg
6.jpg
7.jpg
8.jpg
9.jpg
10.jpg
11.jpg
12.jpg
13.jpg
14.jpg
15.jpg
16.jpg
17.jpg
18.jpg
19.jpg
20.jpg
21.jpg
22.jpg
23.jpg
24.jpg
25.jpg
26.jpg
27.jpg
28.jpg
29.jpg
30.jpg

Visitez ce bien avec BASTIEN Véronique

CHEMIN DE LA CROIX DENIS 4 WELLIN CHANLY


    Découvrez nos biens similaires

    Lesterny--5_Zoom.jpg
    Vendu

    Maison, 99 m²

    PEB E6953 LESTERNY


    623 m² Terrain 1 Salle de douche 2 Chambres

    Rendeux--3
    Vendu

    Maison, 145 m²

    PEB G6987 Rendeux


    1185 m² Terrain 1 Salle de bain 1 Salle de douche 3 Chambres

    Nous contacter !