Vendu
Partager

Maison, 243 m²

272 de la libération B-6927 Tellin

4 Chambres 1700 m² Terrain



Général

  • Nombre de chambre : 4

  • Jardin : Oui

  • Garage : Oui

  • Terrasse : Non

  • Parking : Oui

  • Surface habitable : 243 m²

Intérieur

  • État général : construction fermée

  • Toilettes :

  • Cuisines : Non-équipée

  • Châssis : PVC

  • Chauffage (type) : Pas installé

  • Chauffage (ind/coll) : Individuel

  • Cave : Oui

  • Grenier : Oui

Raccordement

  • Egout : Non

  • Électricité : Non

  • Eau : Non

Environnement

  • Environnement : Résidentiel

Extérieur

  • Toiture : Non communiqué

  • Année de construction : 2018

  • Façade : 4 façades

Calculer les droits d'enregistrement

SOUS-SOL: construction en maçonnerie (bloc béton, polyuréthane et revêtement de briques), béton lissé partout au sol. Superficie totale d'environ 15 m², composée d'un garage 2 voitures, espaces de caves, espace buanderie/technique, escalier vers le rez, atelier de plus de 50 m²!

Les volumes au dessus de la cave sont en ossature bois et reposent sur des hourdis en béton.

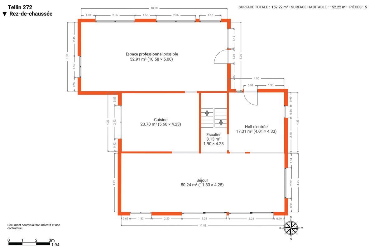
REZ: espace initialement à destination professionnelle de plus de 50 m², grand hall d'entrée, espace séjour (plus de 50 m² également), cuisine de 23 m², escalier vers sous-sol et étage, soit environ 150 m² habitables.
La structure est en ossature bois double paroi qui permet d'insuffler l'isolant,
REZ+1: 4 chambres dont une avec dressing, grande salle de bain, hall de nuit, le tout sur 97 m² habitables.
GRENIER AMENAGEABLE: espace de plus de 100 m² à aménager librement, équipé de fenêtres de toit.

INFOS+:
- toiture en tuiles terre cuite d'excellente qualité,
- compteur électrique bi-horaire, réception de chantier OK,
- châssis en PVC triple vitrage, isolation renforcée dans les chambres des profilés,
- boiler électrique placé,
- citerne de récupération d'eau de pluie de 5.000 litres,
- micro-station d'épuration placée,
- excellente mise en oeuvre des matériaux,
- possibilité d'acquérir en supplément une parcelle de terrain à bâtir attenante d'environ 12 ares.
- bien vendu sous le régime des droits d'enregistrements (et non de la TVA !)

Calculer les droits d'enregistrement

1.jpg
3.jpg
5.jpg
6.jpg
7.jpg
8.jpg
9.jpg
10.jpg
11.jpg
12.jpg
13.jpg
14.jpg
15.jpg
16.jpg
17.jpg
18.jpg
19.jpg
20.jpg
21.jpg
22.jpg
23.jpg
24.jpg
25.jpg
26.jpg
27.jpg
28.jpg
29.jpg
30.jpg
31.jpg
32.jpg

Visitez ce bien avec BASTIEN Véronique

DE LA LIBÉRATION 272 TELLIN


    Découvrez nos biens similaires

    Lesterny--5_Zoom.jpg
    Vendu

    Maison, 99 m²

    PEB E6953 LESTERNY


    623 m² Terrain 1 Salle de douche 2 Chambres

    Rendeux--3
    Vendu

    Maison, 145 m²

    PEB G6987 Rendeux


    1185 m² Terrain 1 Salle de bain 1 Salle de douche 3 Chambres

    Nous contacter !