Vendu
PEB C
Partager

Maison, 119.5 m²

20 Rue Al Quère B-6927 Tellin

3 Chambres 1 Salle de bain 1792 m² Terrain



Général

  • Nombre de chambre : 3

  • Nombre de salle de bain : 1

  • Jardin : Oui

  • Garage : Oui

  • Terrasse : Oui

  • Parking : Oui

  • Surface habitable : 119.5 m²

Intérieur

  • État général : À rafraîchir

  • Toilettes : 2

  • Cuisines : Cuisine équipée

  • Châssis : PVC

  • Chauffage (type) : C.C. au mazout

  • Chauffage (ind/coll) : Individuel

  • Cave : Non

  • Grenier : Oui

Raccordement

  • Egout : Oui

  • Électricité : Oui

  • Eau : Oui

Environnement

  • Environnement : Campagne

Extérieur

  • Toiture : Non communiqué

  • Année de construction : 1999

  • Façade : 4 façades

Consommation et performance énergétique

  • E spec (Kwh/m²/an) : 234

  • E totale (Kwh/an) : 40877

  • Label PEB : C

  • Expiration du certificat énergétique : 30/03/2033

  • Code unique : 20230330026135

Calculer les droits d'enregistrement

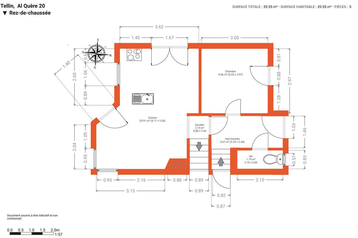
REZ: hall d'entrée desservant une chambre ou un bureau , des WC et le garage
REZ de jardin: cuisine et salle à manger avec poêle à bois
REZ de jardin surélevé : grand et lumineux salon de plus de 33m2
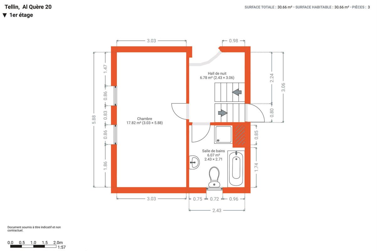
Rez+1 : hall de nuit, chambre et salles de bains (bain et douche), WC
Rez+2 : chambre mansardée
INFOS+:
- parcelle de terrain de 17,92 ares
- abri à bois
- garage avec buanderie et chaufferie, avec accès vers l'extérieur,
- châssis PVC double vitrage avec grille d'aération
- chauffage central mazout 
- toiture en ardoises 
- électricité conforme
- citerne d'eau de pluie 3000L
- proximité des commerces
- RC net : 518€ ( matrice en vérification)

Le propriétaire vendeur du bien dispose de la faculté, de manière totalement libre et autonome, de vendre ou ne pas vendre. S’il décide de vendre, il n’est nullement tenu de retenir l’offre la plus élevée mais choisit celle qui lui convient le mieux au regard de ses propres critères (montant de l’offre, conditions suspensives, délai de signature,…).

Calculer les droits d'enregistrement

1.jpg
2.jpg
3.jpg
4.jpg
5.jpg
6.jpg
7.jpg
8.jpg
9.jpg
10.jpg
11.jpg
12.jpg
13.jpg
14.jpg
15.jpg
16.jpg
17.jpg
18.jpg
19.jpg
20.jpg
21.jpg
22.jpg
23.jpg
24.jpg
25.jpg
26.jpg
27.jpg
28.jpg
29.jpg
30.jpg

Visitez ce bien avec DAVREUX Nancy

RUE AL QUÈRE 20 TELLIN


    Découvrez nos biens similaires

    Rendeux--3
    Vendu

    Maison, 145 m²

    PEB G6987 Rendeux


    1185 m² Terrain 1 Salle de bain 1 Salle de douche 3 Chambres

    VTWELMONTS27- (7).jpg
    Vendu

    Maison

    PEB F5570 BEAURAING


    1 Chambres

    Nous contacter !