Vendu
PEB F
Partager

Maison, 186 m²

41 Rue Croix Sainte-Anne B-6924 Lomprez

3 Chambres 1 Salle de bain 1630 m² Terrain



Général

  • Nombre de chambre : 3

  • Nombre de salle de bain : 1

  • Jardin : Non

  • Garage : Oui

  • Terrasse : Non

  • Parking : Oui

  • Surface habitable : 186 m²

Intérieur

  • État général : À rénover

  • Toilettes : 1

  • Cuisines : Semi-équipée

  • Châssis : Bois

  • Vitrage : Partiellement double, partiellement simple

  • Chauffage (type) : gaz

  • Chauffage (ind/coll) : Individuel

  • Cave : Non

  • Grenier : Oui

Raccordement

  • Egout : Non

  • Électricité : Non

  • Eau : Non

Environnement

  • Orientation : Sud-ouest

Extérieur

  • Toiture : Toiture en pente

  • Année de construction : 1910

  • Façade : 4 façades

Consommation et performance énergétique

  • E spec (Kwh/m²/an) : 468

  • E totale (Kwh/an) : 109016

  • Label PEB : F

  • Expiration du certificat énergétique : 28/06/2034

  • Code unique : 20240428004921

Calculer les droits d'enregistrement

Maison à rénover dans un cadre paisible et verdoyant.

REZ: hall d'entrée avec WC séparé, salon, vaste séjour de presque 60 m² comprenant l'actuelle cuisine, largement ouvert sur le jardin et équipé d'une cassette à bois dans un ancien feu ouvert , ancienne cuisine, buanderie, salle de bain, accès vers la garage en annexe,

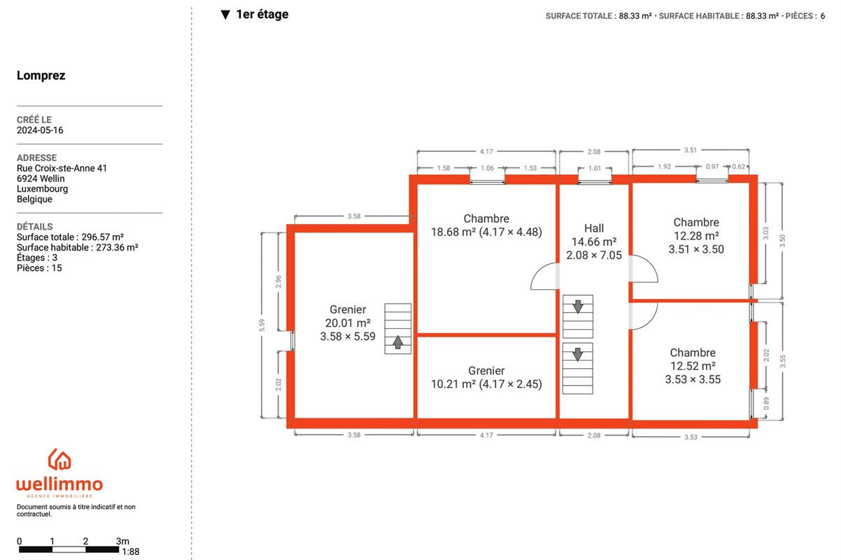
REZ+1: hall de nuit desservant 3 chambres, un espace actuellement non accessible depuis le hall permettrait d'en aménager une quatrième (ou une salle de bain à l'étage),

INFOS+:

- grenier  de 56 m², aménageable sur environ 25 m²,

- espace de rangement au-dessus du garage,

- toiture du volume principal en ardoises artificielles (environ 15 ans), les toitures au dessus du grand séjour (agrandissement réalisé en 1976) et du garage sont plus anciennes, non isolées,

- électricité simple horaire à mettre en conformité,

- châssis en bois, mix de simple et double vitrage,

- chauffage au gaz avec accumulateurs,

- sur une belle parcelle de terrain de 16 ares 30 centiares, orientée sud-ouest, dont une partie est encore à bâtir,

- dans une rue calme du village de Lomprez, à un jet de pierre de Wellin et toutes ses commodités, à environ 4 km de la E411 !

- RC net 770 euros.

Le propriétaire vendeur du bien dispose de la faculté, de manière totalement libre et autonome, de vendre ou ne pas vendre. S'il décide de vendre, il n'est nullement tenu de retenir l'offre la plus élevée mais choisit celle qui lui convient le mieux au regard de ses propres critères (montant de l'offre, conditions suspensives, délai de signature, ).

Calculer les droits d'enregistrement

Lomprez 41-2.jpg
Lomprez 41-5.jpg
Lomprez 41-7.jpg
Lomprez 41-11.jpg
Lomprez 41-8.jpg
Lomprez 41-9.jpg
Lomprez 41-10.jpg
Lomprez 41-17.jpg
Lomprez 41-16.jpg
Lomprez 41-18.jpg
Lomprez 41-19.jpg
Lomprez 41-14.jpg
Lomprez 41-15.jpg
Lomprez 41-12.jpg
Lomprez 41-13.jpg
Lomprez 41.jpg
Rdc.jpg
Lomprez 41-20.jpg
Lomprez 41-21.jpg
Lomprez 41-22.jpg
Lomprez 41-24.jpg
1_1er.pdf
Lomprez 41-25.jpg
Lomprez 41-26.jpg
2ème.jpg
Lomprez 41-3.jpg
Lomprez 41-4.jpg
Lomprez 41-6.jpg

Visitez ce bien avec BASTIEN Véronique

RUE CROIX SAINTE-ANNE 41 LOMPREZ


    Découvrez nos biens similaires

    Rendeux--3
    Vendu

    Maison, 145 m²

    PEB G6987 Rendeux


    1185 m² Terrain 1 Salle de bain 1 Salle de douche 3 Chambres

    VTWELMONTS27- (7).jpg
    Vendu

    Maison

    PEB F5570 BEAURAING


    1 Chambres

    Nous contacter !