Vendu
PEB B
Partager

Maison, 165 m²

10 Rue de la Wiaule B-5555 Bièvre

6 Chambres 2 Salle de bain 1315 m² Terrain



Général

  • Nombre de chambre : 6

  • Nombre de salle de bain : 2

  • Jardin : Oui

  • Garage : Oui

  • Terrasse : Oui

  • Parking : Oui

  • Surface habitable : 165 m²

Intérieur

  • État général : Excellent état

  • Cuisines : Non communiqué

  • Châssis : PVC

  • Vitrage : Triple vitrage

  • Chauffage (type) : Non communiqué

  • Chauffage (ind/coll) : Non communiqué

  • Cave : Oui

  • Grenier : Oui

Raccordement

  • Egout : Non

  • Électricité : Non

  • Eau : Non

Environnement

  • Orientation : Ouest

Extérieur

  • Toiture : Non communiqué

  • Année de construction : 1980

  • Façade : 4 façades

Consommation et performance énergétique

  • E spec (Kwh/m²/an) : 156

  • E totale (Kwh/an) : 53947

  • Label PEB : B

  • Expiration du certificat énergétique : 17/12/2034

  • Code unique : 20241217011487

Calculer les droits d'enregistrement

REZ: sas d'entrée/vestiaire, hall d'entrée, vaste séjour très lumineux (grandes baies vitrées ouvertes sur la terrasse) équipé d'un poêle à pellets, spacieuse cuisine très bien équipée (évier 1+1/2, four, taque induction, hotte, lave-vaisselle, frigo, congélateur, micro-ondes), hall permettant l'accès à l'arrière et aux escaliers de la cave, buanderie, chambre ou bureau, salle de bain (entièrement rénovée dernièrement, comprenant double lavabo, douche italienne et WC),

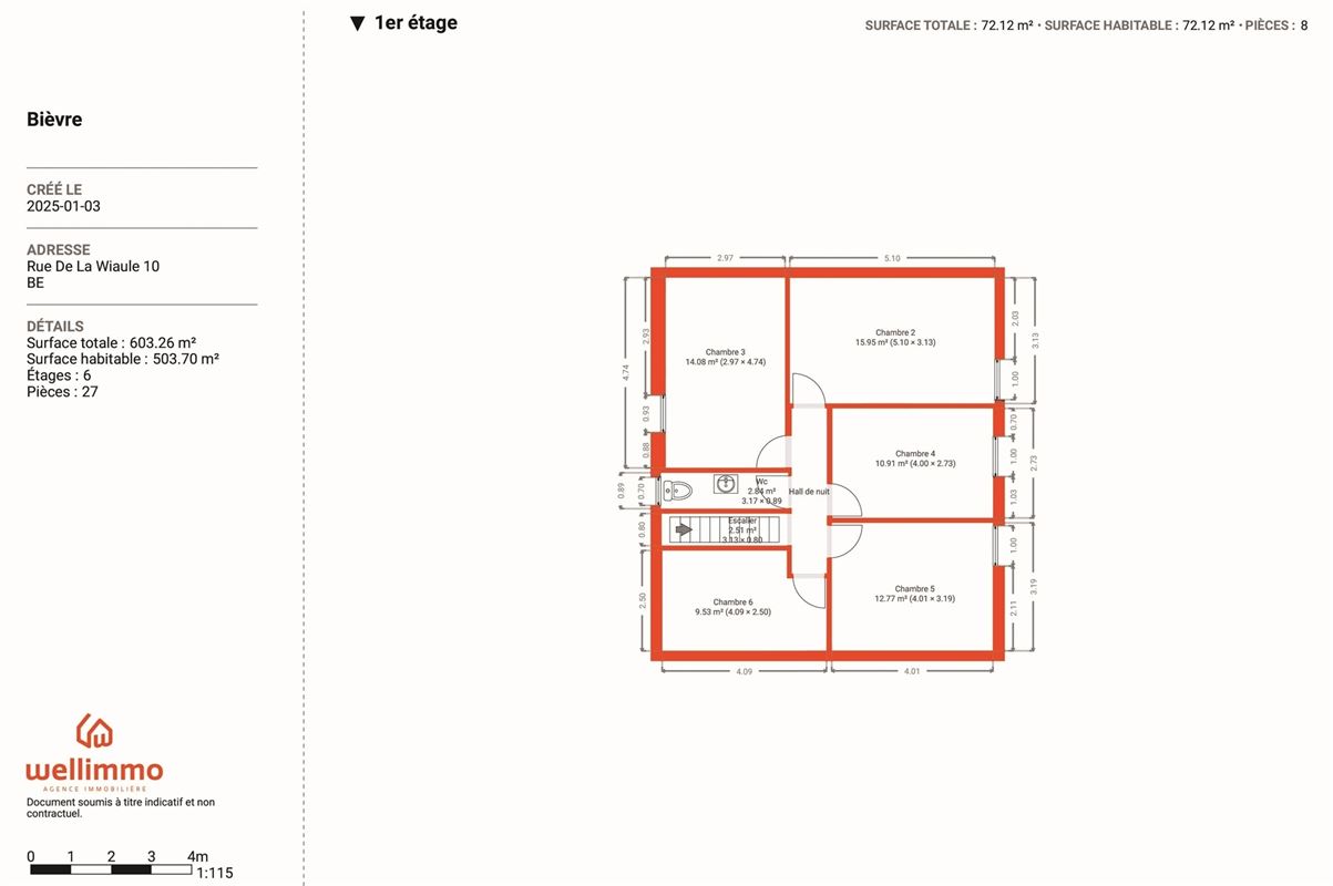
REZ+1: hall de nuit distribuant 5 chambres et un WC avec lave-mains.

 

INFOS+:

- caves (30 et 17 m²), garage (40 m²), silo à pellets et salle de douche avec WC et lavabo, récente (sous tout le volume bâti),

- grenier de rangement (environ 35 m²),

- agréable terrasse orientée Sud-Ouest,

- salle de bain et salle de douche entièrement rénovées dernièrement,

- électricité mise en conformité en 2023, certificat valable jusque 2048 (simple horaire, triphasé),

- 2 des chambres de l'étage ont été aménagées dernièrement (sols, plafonds, murs etc.),

- chauffage central via chaudière à pellets (silo de 5.8 tonnes en cave), poêle à pellets indépendant dans le séjour, cheminée tubée,

- eau chaude sanitaire via la chaudière ou l'électricité,

- excellent niveau d'isolation (PEB : B!),

- toiture en ardoises naturelles, en très bon étai, isolée,

- châssis en PVC triple vitrage,

- construction de 1980, en excellent état d'entretien, rénovée en 2012 puis à partir de 2020,

- raccordée à l'égouttage public,

- sur une parcelle de 13 ares 15 centiares orientée ouest à l'arrière,

- atelier/hangar/garages en annexe, avec fosse, environ 150 m² exploitables au sol, sur deux niveaux, soit 300 m² en tout !

- belle situation dans une rue calme et résidentielle,

- RC net de 677 euros pour la maison et 540 euros pour le bâtiment en annexe.

 

Le propriétaire vendeur du bien dispose de la faculté, de manière totalement libre et autonome, de vendre ou ne pas vendre. S’il décide de vendre, il n’est nullement tenu de retenir l’offre la plus élevée mais choisit celle qui lui convient le mieux au regard de ses propres critères (montant de l’offre, conditions suspensives, délai de signature, …).

 

Calculer les droits d'enregistrement

Bièvre--50.jpg
Bièvre--52.jpg
Bièvre--12.jpg
Bièvre--6.jpg
20230414_155933.jpg
20230517182856_IMG_0618.JPG
Bièvre--14.jpg
Bièvre--10.jpg
Bièvre--11.jpg
Bièvre--7.jpg
Bièvre--2.jpg
Bièvre-.jpg
Bièvre--3.jpg
Bièvre--30.jpg
Rdc.jpg
Bièvre--17.jpg
Bièvre--16.jpg
Bièvre--18.jpg
Bièvre--19.jpg
Bièvre--20.jpg
Bièvre-01932.jpg
1er.jpg
Bièvre--36.jpg
Bièvre--35.jpg
Bièvre--31.jpg
Bièvre--33.jpg
Bièvre--34.jpg
Sous-sol.jpg
2ème.jpg
20230517182726_IMG_0613.JPG

Visitez ce bien avec BASTIEN Véronique

RUE DE LA WIAULE 10 BIÈVRE


    Découvrez nos biens similaires

    Lesterny--5_Zoom.jpg
    Vendu

    Maison, 99 m²

    PEB E6953 LESTERNY


    623 m² Terrain 1 Salle de douche 2 Chambres

    Rendeux--3
    Vendu

    Maison, 145 m²

    PEB G6987 Rendeux


    1185 m² Terrain 1 Salle de bain 1 Salle de douche 3 Chambres

    Nous contacter !