Vendu
PEB E
Partager

Maison, 202.5 m²

30 rue du home B-6870 Saint-Hubert

4 Chambres 1 Salle de bain 156 m² Terrain



Général

  • Nombre de chambre : 4

  • Nombre de salle de bain : 1

  • Jardin : Oui

  • Garage : Oui

  • Terrasse : Non

  • Parking : Oui

  • Surface habitable : 202.5 m²

Intérieur

  • État général : À rénover

  • Toilettes : 1

  • Cuisines : kitchenette

  • Châssis : Bois

  • Chauffage (type) : Poêle au mazout

  • Chauffage (ind/coll) : Individuel

  • Cave : Oui

  • Grenier : Oui

Raccordement

  • Egout : Oui

  • Électricité : Oui

  • Eau : Oui

Environnement

  • Environnement : Banlieue

Extérieur

  • Toiture : Non communiqué

  • Année de construction : 1920

  • Façade : 2 façades

Consommation et performance énergétique

  • E spec (Kwh/m²/an) : 392

  • E totale (Kwh/an) : 60737

  • Label PEB : E

  • Expiration du certificat énergétique : 25/01/2034

  • Code unique : 20240125020659

Calculer les droits d'enregistrement

Contact pour les visites nancy@wellimmo.be ou 0474/494 417

Maison villageoise en pierre du pays dans une rue calme

C'est avec plaisir que Wellimmo vous présente cette belle maison familiale avec son garage donnant accès sur une rue parallèle . Située dans une rue calme, toutes les commodités qu' offre la ville de St-Hubert sont accessibles à pied ( commerces, restaurants, écoles, administration etc... ). Après un rafraichissement et quelques travaux de confort, vous pourrez profiter d'une habitation saine aux beaux volumes et au jardin idéalement exposé sud-ouest. Un double séjour, 4 chambres, des combles aménageables, une belle grande cave et un garage pouvant servir d'atelier en font une occasion à ne surtout pas manquer ! 

Composition :

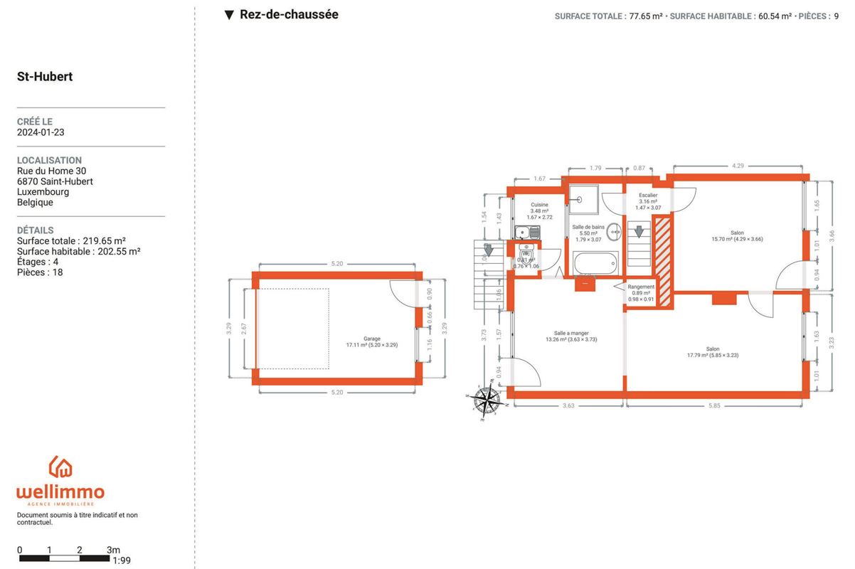
RDC : salle à manger, salon, cuisine et arrière-cuisine, WC, salle de bains et buanderie accès jardin (orienté sud-ouest)

Etage 1 : 4 chambres (dont 1 en enfilade)

Etage 2: Combles à aménager

Etage-1: double cave

Garage avec porte sectorielle

Eléments techniques :

Chauffage par poêle à Mazout

Electricité à refaire

Châssis simple vitrage bois

Toit OK

Garage avec porte sectionnielle accessible par le jardin et la rue de la Glacière

Maison saine, sans humidité avec beaux volumes.

RC: 530€ ( possibilité de droits d'enregistrement réduits sous respect des conditions )

Le propriétaire vendeur du bien dispose de la faculté, de manière totalement libre et autonome, de vendre ou ne pas vendre. S’il décide de vendre, il n’est nullement tenu de retenir l’offre la plus élevée mais choisit celle qui lui convient le mieux au regard de ses propres critères (montant de l’offre, conditions suspensives, délai de signature,…).

Calculer les droits d'enregistrement

1.jpg
2.jpg
3.jpg
4.jpg
5.jpg
6.jpg
7.jpg
8.jpg
9.jpg
10.jpg
11.jpg
12.jpg
13.jpg
14.jpg
15.jpg
16.jpg
17.jpg
18.jpg
19.jpg
20.jpg
21.jpg
22.jpg
23.jpg
24.jpg
25.jpg
26.jpg
27.jpg

Visitez ce bien avec DAVREUX Nancy

RUE DU HOME 30 SAINT-HUBERT


    Découvrez nos biens similaires

    Lesterny--5_Zoom.jpg
    Vendu

    Maison, 99 m²

    PEB E6953 LESTERNY


    623 m² Terrain 1 Salle de douche 2 Chambres

    Rendeux--3
    Vendu

    Maison, 145 m²

    PEB G6987 Rendeux


    1185 m² Terrain 1 Salle de bain 1 Salle de douche 3 Chambres

    Nous contacter !