Vendu
PEB E
Partager

Maison, 175 m²

43 de la Station B-6920 Wellin

4 Chambres 1 Salle de bain 1820 m² Terrain



Général

  • Nombre de chambre : 4

  • Nombre de salle de bain : 1

  • Jardin : Oui

  • Garage : Oui

  • Terrasse : Oui

  • Parking : Oui

  • Surface habitable : 175 m²

Intérieur

  • État général : À rafraîchir

  • Toilettes : 2

  • Cuisines : Semi-équipée

  • Châssis : Bois

  • Chauffage (type) : C.C. au gaz

  • Chauffage (ind/coll) : Individuel

  • Cave : Oui

  • Grenier : Non

Raccordement

  • Egout : Oui

  • Électricité : Oui

  • Eau : Oui

Environnement

  • Environnement : Résidentiel

Extérieur

  • Toiture : Non communiqué

  • Année de construction : 1979

  • Façade : 3 façades

Consommation et performance énergétique

  • E spec (Kwh/m²/an) : 416

  • E totale (Kwh/an) : 73183

  • Label PEB : E

  • Expiration du certificat énergétique : 13/04/2033

  • Code unique : 20230413010239

Calculer les droits d'enregistrement

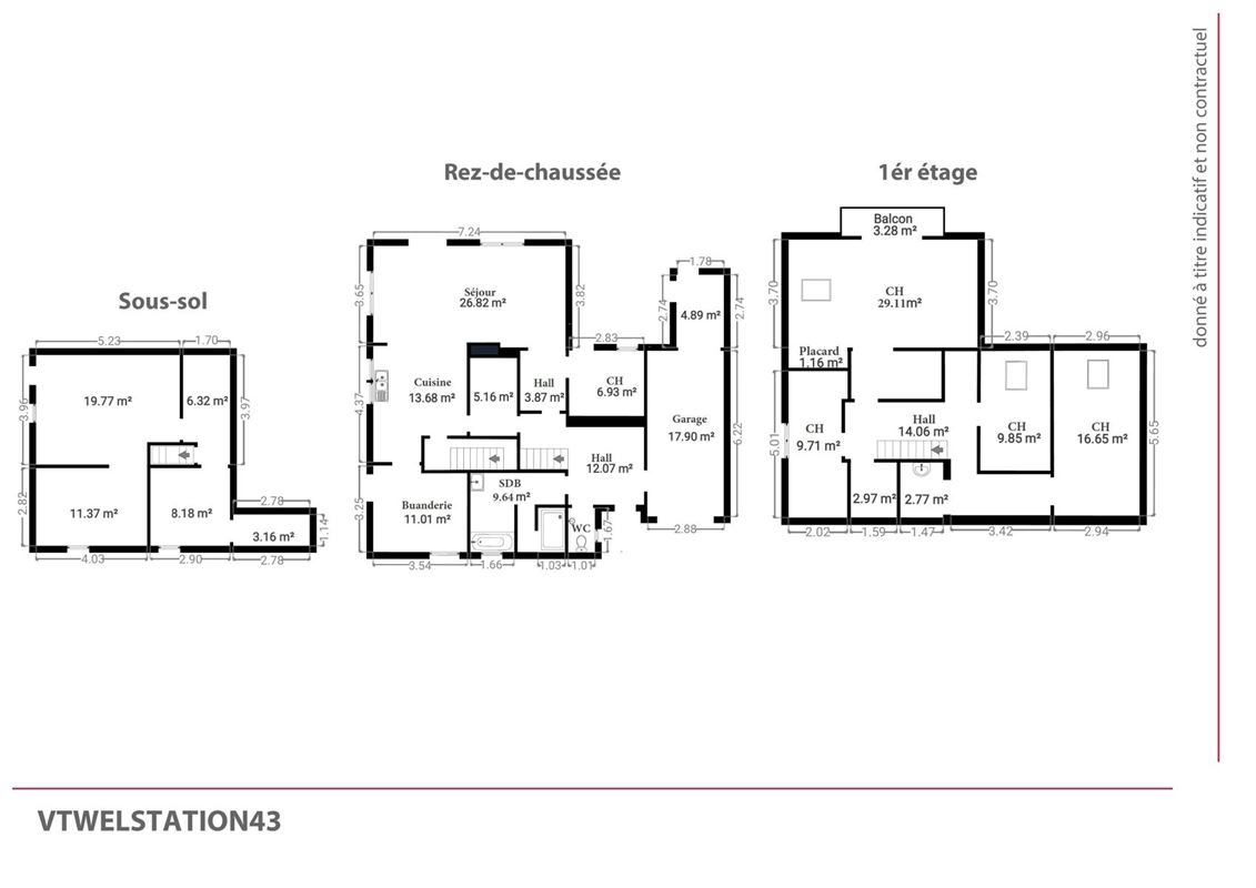
REZ: hall d'entrée avec wc séparé, spacieux séjour ouvert sur la cuisine semi équipée, espace chaufferie, bureau (ou chambre), salle de bain, garage, appentis, terrasse couverte.
REZ+1: hall de nuit desservant 4 chambres, 1 wc, une pièce d'eau.
INFOS+:
- grandes caves avec accès vers le jardin,
- électricité simple horaire à mettre en conformité,
- toiture en bon état général, petite isolation sous la toiture,
- châssis en bois double vitrages de 1979,
- chauffage central gaz, chaudière de 2016, citerne avec contrat de location, 
- boiler électrique pour la production d'eau chaude sanitaire,
- sur une parcelle de 18 ares 20 centiares, jardin orienté sud, 
- ancienne serre d'environ 40 m², à rénover,
- proche du centre de Wellin, de toutes les commodités, proximité E411,
- RC net 706 euros, la réduction des droits d'enregistrements est donc possible (sous réserve de la confirmation du revenu cadastral par l'administration fiscale).

Le propriétaire vendeur du bien dispose de la faculté, de manière totalement libre et autonome, de vendre ou ne pas vendre. S’il décide de vendre, il n’est nullement tenu de retenir l’offre la plus élevée mais choisit celle qui lui convient le mieux au regard de ses propres critères (montant de l’offre, conditions suspensives, délai de signature,…).

Calculer les droits d'enregistrement

1.jpg
2.jpg
3.jpg
4.jpg
5.jpg
6.jpg
7.jpg
8.jpg
9.jpg
10.jpg
11.jpg
12.jpg
13.jpg
14.jpg
15.jpg
16.jpg
17.jpg
18.jpg
19.jpg
20.jpg
21.jpg
22.jpg
23.jpg
24.jpg
25.jpg
26.jpg
27.jpg
28.jpg
29.jpg
30.jpg

Visitez ce bien avec BASTIEN Véronique

DE LA STATION 43 WELLIN


    Découvrez nos biens similaires

    Lesterny--5_Zoom.jpg
    Vendu

    Maison, 99 m²

    PEB E6953 LESTERNY


    623 m² Terrain 1 Salle de douche 2 Chambres

    Rendeux--3
    Vendu

    Maison, 145 m²

    PEB G6987 Rendeux


    1185 m² Terrain 1 Salle de bain 1 Salle de douche 3 Chambres

    Nous contacter !