Faire offre à partir de
Vendu
PEB D
Partager

maison unifamiliale, 106.72 m²

8 Rue du Chafour B-6900 Marche-En-Famenne

2 Chambres 1 Salle de bain 249 m² Terrain



Général

  • Nombre de chambre : 2

  • Nombre de salle de bain : 1

  • Jardin : Oui

  • Surface du jardin : 170 m²

  • Garage : Non

  • Terrasse : Oui

  • Parking : Non

  • Surface habitable : 106.72 m²

Intérieur

  • État général : Rénové

  • Toilettes : 1

  • Cuisines : Entièrement équipée

  • Châssis : PVC

  • Vitrage : Double vitrage

  • Chauffage (type) : C.C. au mazout

  • Chauffage (ind/coll) : Individuel

  • Cave : Oui

  • Grenier : Non

Raccordement

  • Egout : Non

  • Électricité : Non

  • Eau : Oui

Environnement

  • Environnement : Résidentiel

  • Orientation : Nord-est

Extérieur

  • Toiture : Toiture en pente

  • Année de construction : 1930

  • Façade : 3 façades

Consommation et performance énergétique

  • E spec (Kwh/m²/an) : 274

  • E totale (Kwh/an) : 29697

  • Label PEB : D

  • Expiration du certificat énergétique : 21/09/2034

  • Code unique : 20240921002159

Calculer les droits d'enregistrement

Charmante petite maison rénovée avec jardin

C'est avec plaisir que Wellimmo vous propose cette charmante petite maison mitoyenne avec jardin, récemment rénovée et située dans un quartier proche de tous services (commerces, transprot en commun, écoles etc...). Parfaitement adaptée pour un couple ou une petite famille, cette maison offre un cadre de vie agréable et chaleureux. Un véritable cocon prêt à accueillir ses nouveaux propriétaires. Son jardin intime avec terrasse abritée est un atout précieux pour profiter des beaux jours. 

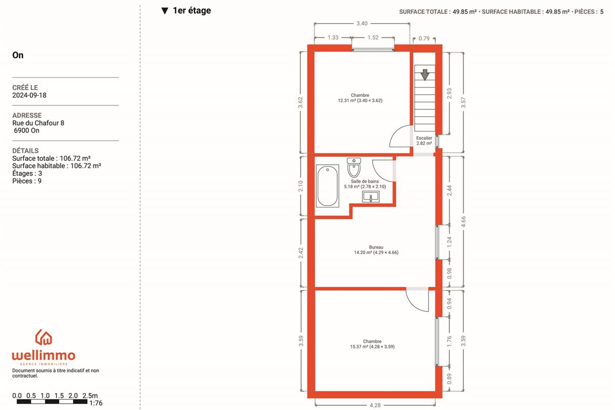
Le bien se compose comme suit:

RDC-1 : cave -chaufferie

RDC : grande pièce à vivre de +/- 35m2 , cuisine moderne et équipée, baie vitrée sur terrasse couverte

RDC+1 : couloir, 2 chambres, 1 bureau pouvant devenir une 3e chambre, salle de bain avec toilettes suspendues

Info +++

Côté extérieur : tout est aménagé : clôture, portail d'entrée petit étang , abri de jardin fonctionnel, terrasse en Klinkers, eau, et électricité

Côté technique : électricité refaite, panneaux solaires (puissance 5,6 KW), toiture OK ( 2010) , poêle à bois, chauffage central avec nouvelle chaudière mazout ( citerne < 3000L), châssis récent double vitrage PVC ( sauf petite fenètre), isolation récente

RC: 563€ 

Le propriétaire vendeur du bien dispose de la faculté, de manière totalement libre et autonome, de vendre ou ne pas vendre. S’il décide de vendre, il n’est nullement tenu de retenir l’offre la plus élevée mais choisit celle qui lui convient le mieux au regard de ses propres critères (montant de l’offre, conditions suspensives, délai de signature,…).

Calculer les droits d'enregistrement

On-32
On-18
On-14
On-15
On-20
On-16
On-17
On-19
On-12
On-11
On-13
On-2
On
On-3
On-10
On-9
On-6
On-4
On-26
On-25
On-24
On-29
On-30
On-31
On-34
1er
Rdc
sous-sol

Visitez ce bien avec DAVREUX Nancy

MARCHE-EN-FAMENNE rue du chafour


    Découvrez nos biens similaires

    Nous contacter !