Vendu
PEB D
Partager

maison unifamiliale, 177.75 m²

10 Fouy d'en Bas B-6927 Tellin

3 Chambres 1 Salle de bain 610 m² Terrain



Général

  • Nombre de chambre : 3

  • Nombre de salle de bain : 1

  • Jardin : Oui

  • Surface du jardin : 500 m²

  • Garage : Non

  • Terrasse : Non

  • Parking : Non

  • Surface habitable : 177.75 m²

Intérieur

  • État général : Rénové

  • Toilettes : 1

  • Cuisines : equipée

  • Châssis : PVC

  • Vitrage : Double vitrage

  • Chauffage (type) : C.C. au mazout

  • Chauffage (ind/coll) : Individuel

  • Cave : Oui

  • Grenier : Oui

Raccordement

  • Egout : Oui

  • Électricité : Oui

  • Eau : Oui

Environnement

  • Environnement : Campagne

  • Orientation : Sud

Extérieur

  • Toiture : Toiture en pente

  • Année de construction : 1900

  • Façade : 4 façades

Consommation et performance énergétique

  • E spec (Kwh/m²/an) : 302

  • E totale (Kwh/an) : 74804

  • Label PEB : D

  • Expiration du certificat énergétique : 31/08/2034

  • Code unique : 20240831008153

Calculer les droits d'enregistrement

Belle longère sur les hauteurs du village (calme et nature) 

Vous cherchez le calme et le charme de l'ancienne pierre ? Vous rêvez d'un cadre de vie paisible avec une vue ? Ne cherchez plus, cette maison est faite pour vous !
Descriptif :
Wellimmo est ravi de vous proposer cette magnifique longère en pierre, qui allie cachet et confort moderne. 
Les travaux de rénovation ont été réalisés avec soin en utilisant des matériaux de qualité et en préservant l'essence de la maison. 
Les volumes sont surprenants et bien agencés pour offrir à la fois intimité et espace de vie convivial. 
Un véritable atout est le studio indépendant qui pourrait servir une fois aménagé à accueillir les amis, une profession libérale, un espace de loisirs (salle de musique, salle de sport etc...). Et si vous avez besoin d'encore plus d'espace, l' ancien fournil pourrait être rénové. 
Située sur les hauteurs du bucolique village de Tellin, elle est entourée d'un agréable jardin, idéal pour en profiter à loisir sans grosse contrainte d'entretien. 
Ne manquez pas cette opportunité unique ! 


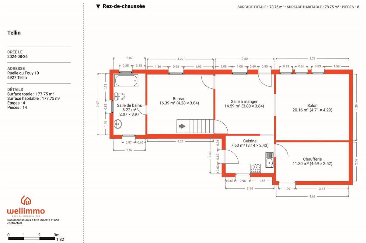
Composition: 

RDC-1 : cave

RDC: salle à manger, cuisine équipée avec accès jardin, buanderie, grand salon, espace bureau/blibilothèque, salle de bains

RDC+ 1 : 3 chambres dont l'une avec dressing ( qui pourrait devenir une deuxème salle de bains)

RDC+2 : grand grenier facilement aménageable

Studio : +/- 40m2

Ancien fournil : à rénover

Côté technique : 
- nouveau toit
- isolation récente
- nouveaux chassis PVC double vitrage
- électricité conforme ( jusqu'en 2046),
- poêle à pellets,
- chauffage central nouvelle chaudière à mazout (citerne 1200L),
- nouveau boiler,
- raccordement égouts, ...

R.C: 535 € 

Localisation : 
Situé à la frontière entre la Famenne et l'Ardenne, le village  de Tellin se trouve dans la zone Geopark Famenne-Ardenne. Tellin est une petite commune paisible nichée dans un écrin de verdure.
Un des atouts de Tellin est ses belles promenades à travers beaux paysages, campagnes fleuries et forêts . 
Le village offre de chouettes commerces locaux et  est proche de toutes les commodités (à +/- 10 km de Rochefort, de Redu, St-Hubert, de Wellin et de la gare de Jemelle) 



Le propriétaire vendeur du bien dispose de la faculté, de manière totalement libre et autonome, de vendre ou ne pas vendre. S’il décide de vendre, il n’est nullement tenu de retenir l’offre la plus élevée mais choisit celle qui lui convient le mieux au regard de ses propres critères (montant de l’offre, conditions suspensives, délai de signature,…).

Calculer les droits d'enregistrement

Tellin-27
Tellin-29
Tellin-13
Tellin-8
Tellin-6
Tellin-7
Tellin-5
Tellin
Tellin-4
Tellin-9
Tellin-10
Tellin-15
Tellin-21
Tellin-19
Tellin-24
Tellin-28
Tellin-31
Tellin-34
Tellin tracé ok_
Rdc
1er
2ème
Tellin-35
Tellin-33

Visitez ce bien avec DAVREUX Nancy

TELLIN Fouy d’en bas 10


    Découvrez nos biens similaires

    Nous contacter !