Vendu
PEB E
Partager

Maison, 127.89 m²

58 Sclassin B-6929 Daverdisse

3 Chambres 2 Salle de bain 2190 m² Terrain



Général

  • Nombre de chambre : 3

  • Nombre de salle de bain : 2

  • Jardin : Oui

  • Garage : Oui

  • Terrasse : Oui

  • Parking : Oui

  • Surface habitable : 127.89 m²

Intérieur

  • État général : Non communiqué

  • Toilettes : 2

  • Cuisines : Semi-équipée

  • Châssis : PVC

  • Vitrage : Double vitrage

  • Chauffage (type) : Poêle au bois

  • Chauffage (ind/coll) : Individuel

  • Cave : Non

  • Grenier : Non

Raccordement

  • Egout : Oui

  • Électricité : Oui

  • Eau : Oui

Environnement

  • Environnement : Vert

  • Orientation : Ouest

Extérieur

  • Toiture : Toiture mansardé

  • Année de construction : 1996

  • Façade : 4 façades

Consommation et performance énergétique

  • E spec (Kwh/m²/an) : 403

  • E totale (Kwh/an) : 56907

  • Label PEB : E

  • Expiration du certificat énergétique : 25/04/2034

  • Code unique : 20240425022899

Calculer les droits d'enregistrement

Wellimmo vous propose d’acquérir cette charmante maison de construction récente. Au bout d’une voie sans issue d’ un quartier recherché de la commune de Daverdisse, cette propriété aux dimensions idéales vous offrira confort et tranquillité.  .
Avec ses 130 m² de surface habitable, cette maison accueillante se compose d’une confortable pièce à vivre avec un poêle à bois pour une ambiance chaleureuse les soirées d’hiver. La douillette suite parentale du RDC et les 2 grandes chambres de l’étage n’attendent que d’être personnalisées à votre goût . Le garage est spacieux et peut servir d’espace de rangement supplémentaire (un beau carport étant à disposition pour abriter votre véhicule). 
A l'extérieur, une clôture en bois encadre l’entrée, préservant ainsi votre intimité. Le jardin joliment arboré est propice à la détente. Orienté ouest, vous pourrez profiter au fil des saisons d’un bain de verdure depuis la véranda ou la pergola jusque tard dans la soirée. 
Cette maison pourrait bien être l’oasis dont vous rêviez depuis si longtemps. Réservez vite votre visite ! 
 

Le bien se compose comme suit :

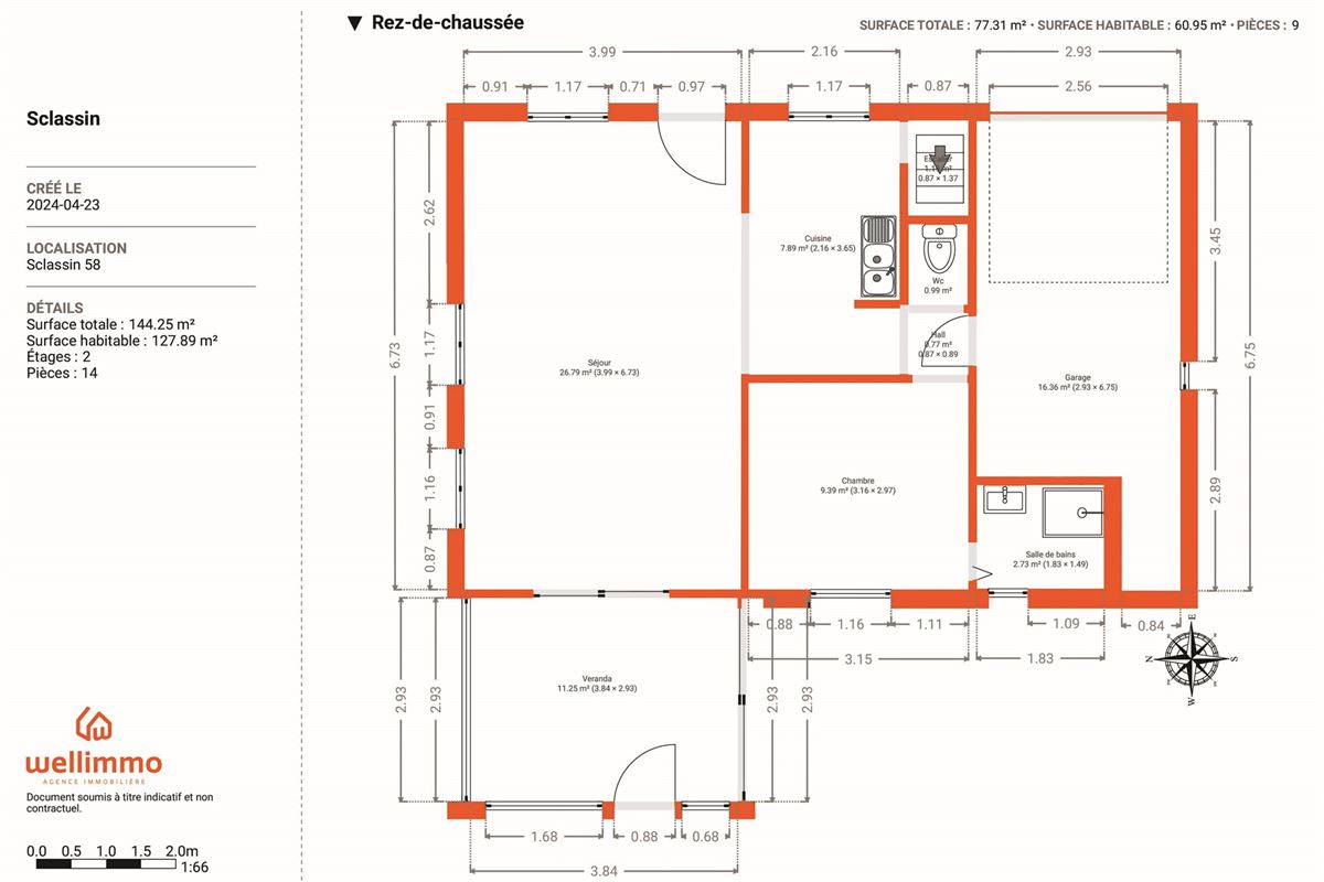
RDC : hall d'entrée , grande pièce de vie avec cuisine ouverte, chambre et salle de douche, WC, garage, véranda et pergola

RDC + 1 : hall de nuit pouvant servir de bureau ou salle de jeu, deux grandes chambres, salle de douche avec WC; dressing

Info + :
-
toit et structure en très bon état ( construction de 1994
- chauffage par accumulateur électrique (RDC) et poêle à bois,
- cuisine  semi-équipée,
- châssis double vitrage en PVC en bon état
- bardage en ardoises naturelles
- vide ventilé
- raccordement à l'égout
- double abri de jardin
- carport 
R.C. : 614€ 
Le propriétaire vendeur du bien dispose de la faculté, de manière totalement libre et autonome, de vendre ou ne pas vendre. S’il décide de vendre, il n’est nullement tenu de retenir l’offre la plus élevée mais choisit celle qui lui convient le mieux au regard de ses propres critères (montant de l’offre, conditions suspensives, délai de signature,…).

Calculer les droits d'enregistrement

DJI_0447 - Modifié
DJI_0474 - Modifié
IMG_0281
montage_fb_1
Sclassin-27
Sclassin-21
Sclassin-31
Sclassin-15
Sclassin-16
Sclassin-17
Sclassin-18
Sclassin-20
Sclassin-5
Sclassin-4
Sclassin-28
DJI_0443 - Modifié
Sclassin-6
Sclassin-8
Sclassin-11
IMG_0278
Rdc
1er
DJI_0466 - Modifié
DJI_0448 - Modifié
Sclassin-23

Visitez ce bien avec DAVREUX Nancy

NEW PRICE SCLASSIN 58 Haut-Fays


    Découvrez nos biens similaires

    Rendeux--3
    Vendu

    Maison, 145 m²

    PEB G6987 Rendeux


    1185 m² Terrain 1 Salle de bain 1 Salle de douche 3 Chambres

    VTWELMONTS27- (7).jpg
    Vendu

    Maison

    PEB F5570 BEAURAING


    1 Chambres

    Nous contacter !