Faire offre à partir de
Vendu
PEB G
Partager

Maison, 172 m²

77 Rue de Chanly B-6922 Halma

1 Chambres 1 Salle de bain 5706 m² Terrain



Général

  • Nombre de chambre : 1

  • Nombre de salle de bain : 1

  • Nombre de salle de douche : 2

  • Jardin : Oui

  • Garage : Non

  • Terrasse : Non

  • Parking : Oui

  • Surface habitable : 172 m²

Intérieur

  • État général : À rafraîchir

  • Toilettes : 2

  • Cuisines : Semi-équipée

  • Châssis : Bois

  • Vitrage : Vitrage simple

  • Chauffage (type) : Poêle au gaz

  • Chauffage (ind/coll) : Individuel

  • Cave : Oui

  • Grenier : Non

Raccordement

  • Egout : Non

  • Électricité : Non

  • Eau : Non

Environnement

  • Orientation : Sud-est

Extérieur

  • Toiture : Toiture en pente

  • Année de construction : 1966

  • Façade : 4 façades

Consommation et performance énergétique

  • E spec (Kwh/m²/an) : 686

  • E totale (Kwh/an) : 131582

  • Label PEB : G

  • Expiration du certificat énergétique : 05/05/2034

  • Code unique : 20240505007767

Calculer les droits d'enregistrement

Vous rêvez d'un projet unique dans un cadre paisible et enchanteur ? Découvrez cette maison à rénover nichée dans un environnement d'une quiétude absolue, offrant une vue panoramique à couper le souffle. Située sur un vaste terrain de presque 60 ares, en zone agricole, à proximité d'un cours d'eau, cette propriété promet un potentiel exceptionnel pour créer votre havre de paix personnalisé.

Dès votre arrivée, vous serez séduit par le charme naturel du lieu et le paysage s'ouvrant devant vous ! Plus loin un verger où chaque saison apporte son lot de couleurs et de parfums... et de délicieux fruits !

La maison est une toile vierge où concrétiser vos rêves ! Avec ses vastes espaces intérieurs, vous pourrez envisager de nombreux projets. L'étage comprend un dortoir spacieux, idéal pour accueillir les enfants ou les amis de passage, ou pourquoi pas un espace de détente propice à la méditation et à la créativité ?

L'emplacement de cette propriété est un atout majeur : située dans un environnement préservé, loin de l'agitation, elle offre une intimité rare tout en restant à proximité des commodités et de la E411.

 Que vous envisagiez d'en faire votre résidence principale ou une retraite de week-end, cette maison à rénover représente une opportunité unique...

Contactez-nous dès aujourd'hui pour planifier une visite et découvrir le potentiel caché de cette propriété exceptionnelle.

 

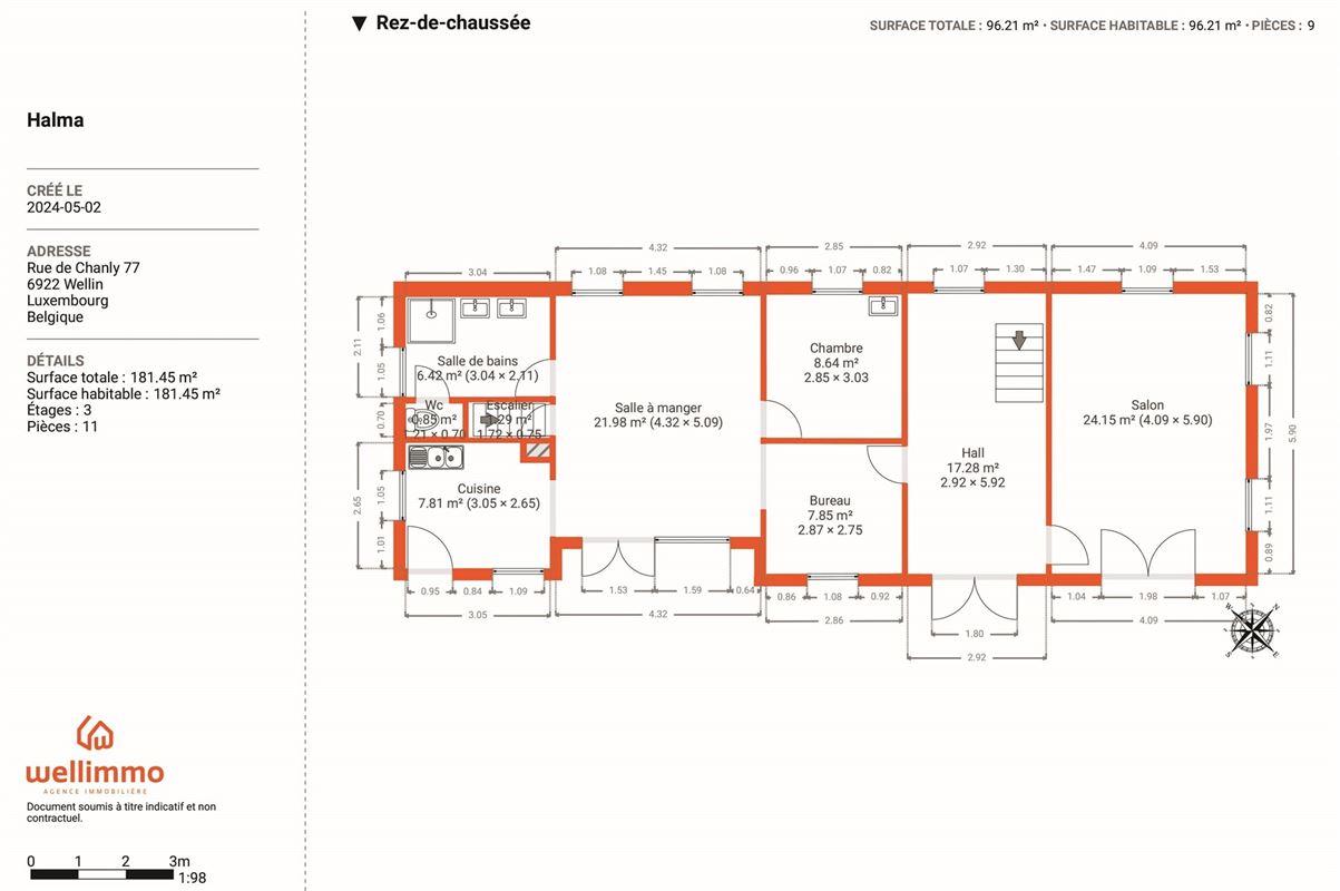
REZ: hall d'entrée comprenant deux douches, à droite l'ancien garage a été reconverti en un grand salon, à gauche un espace de bureau, une chambre, salle de douche (douche et 2 lavabos), WC, cuisine, salle à manger.

REZ+1: vaste dortoir sur presque 80 m² !

INFOS+:

- environnement de qualité: calme, vue dégagée, grande parcelle de terrain, verger... le tout à proximité de Wellin et de la E411 !

- le bâtiment annexe fait office d'abri de jardin,

- petite cave,

- électricité simple horaire à mettre en conformité,

- châssis en bois simple vitrage,

- chauffage via poêle à bois et poêle à gaz (citerne de gaz de 1600 litres),

- eau chaude sanitaire via boiler électrique (en cave),

- pas de raccordement au réseau d'égout, équipé d'une fosse septique,

- toiture non isolée en ardoises artificielles,

- le bien est situé en zone agricole et Natura 2000 au plan de secteur,

- le bâtiment a fait l'objet d'un permis délivré en 1977,

- RC net 693 euros, la réduction des droits d'enregistrements est donc possible (sous réserve de la confirmation du revenu cadastral par l'administration fiscale).

Le propriétaire vendeur du bien dispose de la faculté, de manière totalement libre et autonome, de vendre ou ne pas vendre. S’il décide de vendre, il n’est nullement tenu de retenir l’offre la plus élevée mais choisit celle qui lui convient le mieux au regard de ses propres critères (montant de l’offre, conditions suspensives, délai de signature,…).

 

 

 

 

Calculer les droits d'enregistrement

Halma 77-6.jpg
Halma 77-8.jpg
Halma 77-27.jpg
Halma 77-13.jpg
Halma 77-11.jpg
Halma 77-15.jpg
Halma 77-16.jpg
Halma 77-18.jpg
Halma 77-12.jpg
Halma 77-10.jpg
Halma 77-20.jpg
Rdc.jpg
Halma 77-31.jpg
Halma 77.jpg
Halma 77-24.jpg
Halma 77-22.jpg
Halma 77-23.jpg
Halma 77-25.jpg
1er.jpg
Halma 77-7.jpg
Halma 77-2.jpg
Halma 77-3.jpg
Halma 77-4.jpg
Halma 77-5.jpg
Halma 77-9.jpg
Sous-sol.jpg
Halma 77-29.jpg
Halma 77-26.jpg

Visitez ce bien avec BASTIEN Véronique

RUE DE CHANLY 1 HALMA


    Découvrez nos biens similaires

    Rendeux--3
    Vendu

    Maison, 145 m²

    PEB G6987 Rendeux


    1185 m² Terrain 1 Salle de bain 1 Salle de douche 3 Chambres

    VTWELMONTS27- (7).jpg
    Vendu

    Maison

    PEB F5570 BEAURAING


    1 Chambres

    Nous contacter !