Vendu
PEB C
Partager

Maison de caractère, 116 m²

132 Rue de Haut Fays B-6924 Lomprez

3 Chambres 1 Salle de bain 13301 m² Terrain



Général

  • Nombre de chambre : 3

  • Nombre de salle de bain : 1

  • Jardin : Oui

  • Surface du jardin : 13301 m²

  • Garage : Oui

  • Terrasse : Oui

  • Parking : Non

  • Surface habitable : 116 m²

Intérieur

  • État général : Non communiqué

  • Toilettes : 2

  • Cuisines : Semi-équipée

  • Châssis : PVC

  • Vitrage : Double vitrage

  • Chauffage (type) : C.C. au gaz

  • Chauffage (ind/coll) : Individuel

  • Cave : Oui

  • Grenier : Oui

Raccordement

  • Egout : Non

  • Électricité : Non

  • Eau : Non

Environnement

  • Orientation : Sud-est

Extérieur

  • Toiture : Toiture en pente

  • Année de construction : 1961

  • Façade : Non communiqué

Consommation et performance énergétique

  • E spec (Kwh/m²/an) : 217

  • E totale (Kwh/an) : 34469

  • Label PEB : C

  • Expiration du certificat énergétique : 19/04/2034

  • Code unique : 20240319007154

Calculer les droits d'enregistrement

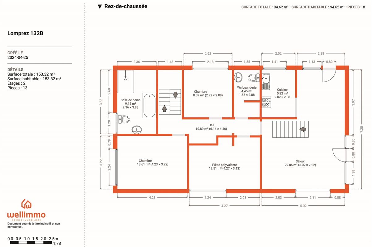
REZ: pièce de séjour composée d'un salon avec poêle à bois en stéatite, espace salle à manger, carrelage en tomettes au sol, cuisine équipée (four, plaque au gaz, hotte, évier, lave-vaisselle, frigo), sol pavé d'anciennes pierres bleues, hall de nuit desservant un espace pouvant servir de bureau, chambre supplémentaire, bibliothèque..., 2 chambres et une salle de bain (baignoire, douche italienne wc et lavabo), un espace WC séparé /buanderie complète le tout.

REZ+1:
1 grande chambre, un grenier, et au-dessus du séjour une mezzanine.

INFOS+:

- chauffage central gaz (chaudière De Dietrich 32 Kw, installation complètement renouvelée, conforme) et poêle à bois double combustion en stéatite (possibilité de l'enlever et revenir au feu ouvert),
- châssis en PVC double vitrage, placés il y a deux ans, avec anciens volets en bois sur les côtés et à l'avant, l'arrière est équipé de volets solaires électriques neufs,
- eau chaude sanitaire produite en instantané via chaudière au gaz,
- électricité conforme (certificat jusque 2043),
- toiture entièrement rénovée et isolée par l'extérieur en 2021 (Sarking 12 cm), mur arrière entièrement isolé par l'extérieur également (16 cm Baumit Opentherm).
- VMC avec récupération de chaleur,
- cave "technique/chaufferie",
- téléphone, télédistribution, internet,
- fosse septique,
- terrain de 1hectare 33 centiares, accessible par un chemin privé, garage indépendant à l'entrée de la propriété,
- verger, bois, ruisseau, petit étang, abris... 
- grandes promenades à travers bois et champs à proximité,
- à proximité de Wellin (commerce, école, accès aisé à la E411 etc.)
- vendue meublée,
- revenu cadastral net 613 euros, la réduction des droits d'enregistrements est donc possible (sous réserve de la confirmation du revenu cadastral par l'administration fiscale).

Le propriétaire vendeur du bien dispose de la faculté, de manière totalement libre et autonome, de vendre ou ne pas vendre. S’il décide de vendre, il n’est nullement tenu de retenir l’offre la plus élevée mais choisit celle qui lui convient le mieux au regard de ses propres critères (montant de l’offre, conditions suspensives, délai de signature,…).

 

Calculer les droits d'enregistrement

Lomprez-8.jpg
Lomprez-7.jpg
Lomprez-19.jpg
Lomprez-17.jpg
Lomprez-43.jpg
Lomprez-2.jpg
Lomprez-22.jpg
Lomprez-23.jpg
Lomprez-10.jpg
Lomprez-21.jpg
Lomprez-20.jpg
Lomprez-24.jpg
Lomprez-11.jpg
Lomprez-12.jpg
Lomprez-25.jpg
Lomprez-34.jpg
Lomprez-35.jpg
Lomprez-36.jpg
Lomprez-33.jpg
Lomprez-32.jpg
Lomprez-31.jpg
Lomprez-37.jpg
Lomprez-38.jpg
Rdc.jpg
Lomprez-39.jpg
Lomprez-40.jpg
1er.jpg
Lomprez-48.jpg
Lomprez-46.jpg
Lomprez-13.jpg

Visitez ce bien avec BASTIEN Véronique

RUE DE HAUT FAYS 132 / B LOMPREZ


    Découvrez nos biens similaires

    Nous contacter !