Vendu
PEB G
Partager

Maison, 120 m²

129 Val des Cloches B-6927 Tellin

3 Chambres 1 Salle de bain 519 m² Terrain



Général

  • Nombre de chambre : 3

  • Nombre de salle de bain : 1

  • Jardin : Non

  • Garage : Non

  • Terrasse : Non

  • Parking : Non

  • Surface habitable : 120 m²

Intérieur

  • État général : À rénover

  • Toilettes : 2

  • Cuisines : Non-équipée

  • Châssis : Bois

  • Vitrage : Double vitrage

  • Chauffage (type) : C.C. au mazout

  • Chauffage (ind/coll) : Individuel

  • Cave : Oui

  • Grenier : Oui

Raccordement

  • Egout : Non

  • Électricité : Non

  • Eau : Non

Environnement

  • Orientation : Sud-ouest

Extérieur

  • Toiture : Toiture en pente

  • Année de construction : 1850

  • Façade : 3 façades

Consommation et performance énergétique

  • E spec (Kwh/m²/an) : 524

  • E totale (Kwh/an) : 75604

  • Label PEB : G

  • Expiration du certificat énergétique : 10/07/2034

  • Code unique : 20240710024347

Calculer les droits d'enregistrement

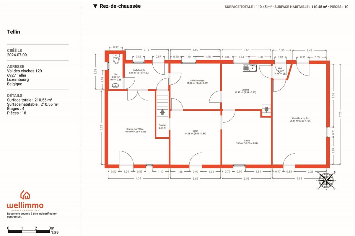
REZ: hall d'entrée carrelé de tomettes en terre cuite, WC séparé avec lave-mains, grange aménageable, salle à manger, cuisine non équipée avec de belles dalles de pierre bleue au sol, salon en deux parties avec vue vers le jardin, ancienne grange aménageable également. Les volumes encore aménageables ont une hauteur sous plafond de 7 mètres. Anciennes portes, poutres etc.

REZ+1: l'étage est accessible par deux escaliers: l'un dessert la salle de bain (baignoire, WC, lavabo) et deux chambres en enfilade, l'autre dessert une grande  "chambre".

INFOS+:

- petite cave avec puisard,

- grenier d'environ 25 m², aménageable,

- châssis en bois double vitrage, datant des années 2000, en très bon état d'entretien,

- toiture en ardoises naturelles récente (vers 2010), non isolée,

- chaudière Buderus de 2004, en excellent état d'entretien, citerne de 1200 litres,

- eau chaude sanitaire produite par la chaudière,

- électricité simple horaire à mettre en conformité,

- sur une parcelle de terrain clôturée de 5 ares 19 centiares, exposition Sud-Est,

- en zone d'épuration collective, le bâtiment est raccordé à l'égout,

- RC net 339 euros, la réduction des droits d'enregistrements est donc possible (sous réserve de la confirmation du revenu cadastral par l'administration fiscale).

Le propriétaire vendeur du bien dispose de la faculté, de manière totalement libre et autonome, de vendre ou ne pas vendre. S’il décide de vendre, il n’est nullement tenu de retenir l’offre la plus élevée mais choisit celle qui lui convient le mieux au regard de ses propres critères (montant de l’offre, conditions suspensives, délai de signature, …).

 

Calculer les droits d'enregistrement

Tellin tracé.jpg
Tellin_-12.jpg
Tellin_-19.jpg
Tellin_-41.jpg
Tellin_-22.jpg
Tellin_-2.jpg
Tellin_-5.jpg
Tellin_-4.jpg
Tellin_-3.jpg
Tellin_-39.jpg
Tellin_-18.jpg
Tellin_-21.jpg
Tellin_-20.jpg
Tellin_-24.jpg
Tellin_-23.jpg
Tellin_-6.jpg
Tellin_-14.jpg
Tellin_-13.jpg
Tellin_-15.jpg
Tellin_-16.jpg
Tellin_-27.jpg
Tellin_-8.jpg
Tellin_-28.jpg
Tellin_-10.jpg
Rdc.jpg
Tellin_.jpg
Tellin_-33.jpg
Tellin_-35.jpg
Tellin_-36.jpg
Tellin_-34.jpg

Visitez ce bien avec BASTIEN Véronique

VAL DES CLOCHES 129 TELLIN


    Découvrez nos biens similaires

    Lesterny--5_Zoom.jpg
    Vendu

    Maison, 99 m²

    PEB E6953 LESTERNY


    623 m² Terrain 1 Salle de douche 2 Chambres

    Rendeux--3
    Vendu

    Maison, 145 m²

    PEB G6987 Rendeux


    1185 m² Terrain 1 Salle de bain 1 Salle de douche 3 Chambres

    Nous contacter !