Vendu
PEB D
Partager

, 110 m²

131 Chemin du Grand Champs B-6637 Fauvillers

3 Chambres 1 Salle de bain 1304 m² Terrain



Général

  • Nombre de chambre : 3

  • Nombre de salle de bain : 1

  • Jardin : Oui

  • Surface du jardin : 1230 m²

  • Garage : Oui

  • Terrasse : Oui

  • Parking : Oui

  • Surface habitable : 110 m²

Intérieur

  • État général : Bon état

  • Toilettes : 1

  • Cuisines : Semi-équipée

  • Châssis : Bois

  • Chauffage (type) : C.C. au mazout

  • Chauffage (ind/coll) : Individuel

  • Cave : Oui

  • Grenier : Oui

Raccordement

  • Egout : Non

  • Électricité : Oui

  • Eau : Oui

Environnement

  • Environnement : Campagne

Extérieur

  • Toiture : Non communiqué

  • Année de construction : 1996

  • Façade : 4 façades

Consommation et performance énergétique

  • E spec (Kwh/m²/an) : 295

  • E totale (Kwh/an) : 38802

  • Label PEB : D

  • Expiration du certificat énergétique : 02/03/2032

  • Code unique : 20220302016528

Calculer les droits d'enregistrement

A la recherche d'un bien avec une magnifique vue? alors coup de coeur assuré !!!
Contactez-nous via Nancy@wellimmo.be ou 0474/494.417

Cette maison discrète de l'extérieur cache bien son jeu. En effet, cette confortable 4 façades, bien entretenue, offre depuis les pièces à vivre et sa belle terrasse une vue imprenable sur la vallée boisée de la Sûre. Elle est située à Bodange, très beau village de la commune de Fauvillers (10 min du Grand-Duché et 5 min des grands axes). Blotti à la jonction de deux vallées et à proximité du site naturel de La Grande Forêt d' Anlier, l'endroit est idéal pour se ressourcer (quiétudes assurée), prendre un grand bol d'air et/ou profiter de longues balades (Ravel à proximité) ou de cyclo-randonnées (boucles Cyclolégendes).

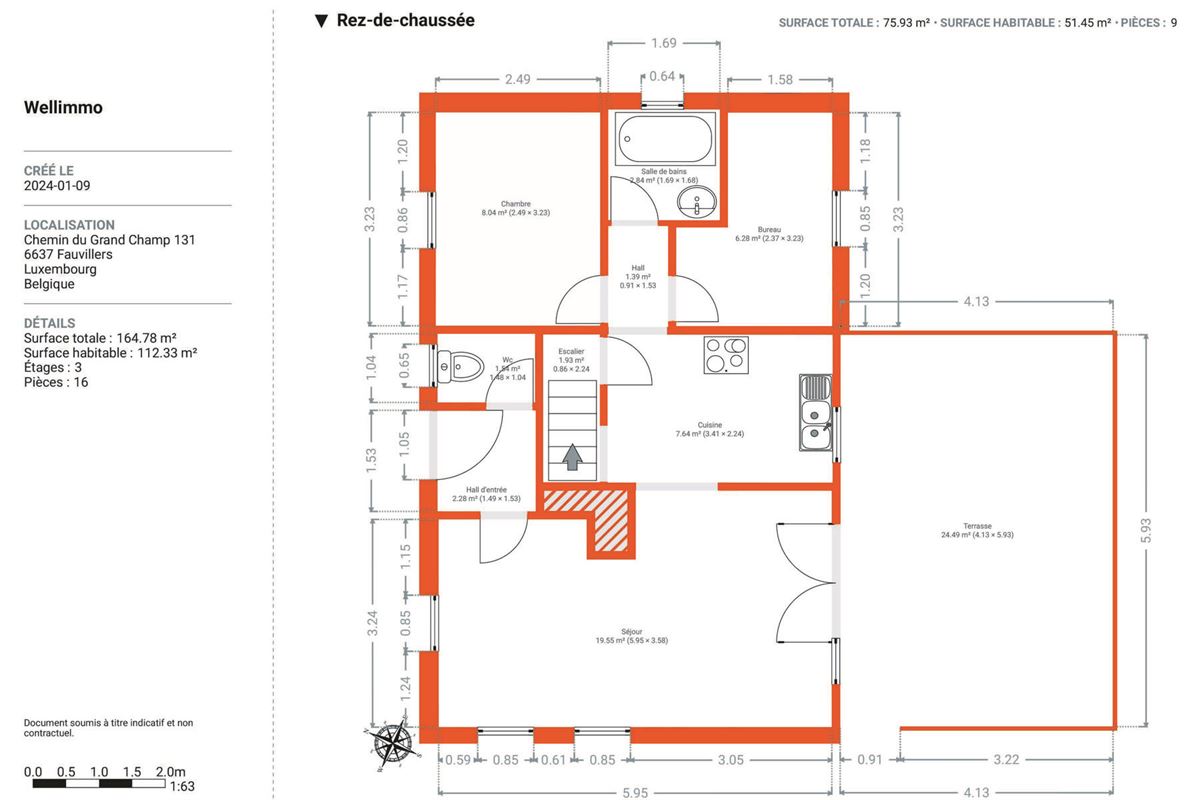
La maison se compose comme suit: 
REZ: Hall d'entrée, salon et salle à manger "cathédrale", cuisine semi-équipée ouverte, chambre, bureau (ou buanderie), salle de bains, WC séparés et grande terrasse
REZ+1: Mezzanine, 2 chambres, petit grenier 
REZ-1: cave-chaufferie et garage

INFOS+:
- ossature bois sur fondation et sous-sol en 'dur' ( blocs de béton et hourdis) . Revêtement extérieur: briques
- parcelle de 13 ares 04 centiares constitutée de palliers avec une belle partie plate à exploiter sur le coté et arrière de la maison  
- Exposition jardin: sud
- Gîte de petite capacité possible sous respect des conditions émises par la commune ( 1 emplacement de stationnement / 3 personnes,
   1 local réservé aux stockage des poubelles, 1 local permettant de stocker les vélos, poussettes etc. )
- RC net : à confirmer

Côté technique
- Toiture en bon état ( polytuiles)
- châssis double vitrage bois
- chauffage centrale Mazout (RDC), radiateurs électriques (RDC+1) et poêle à pellets
- carport
- présence de vides ventilés 
- PEB D

Le propriétaire vendeur du bien dispose de la faculté, de manière totalement libre et autonome, de vendre ou ne pas vendre. S’il décide de vendre, il n’est nullement tenu de retenir l’offre la plus élevée mais choisit celle qui lui convient le mieux au regard de ses propres critères (montant de l’offre, conditions suspensives, délai de signature,…).

Calculer les droits d'enregistrement

1.jpg
2.jpg
3.jpg
4.jpg
5.jpg
6.jpg
7.jpg
8.jpg
9.jpg
10.jpg
11.jpg
12.jpg
13.jpg
14.jpg
15.jpg
16.jpg
17.jpg
18.jpg
19.jpg
20.jpg
21.jpg
22.jpg
23.jpg
24.jpg
25.jpg
26.jpg
27.jpg
28.jpg
29.jpg

Visitez ce bien avec DAVREUX Nancy

CHEMIN DU GRAND CHAMPS 131 FAUVILLERS


    Découvrez nos biens similaires

    1.jpg
    Vendu

    , 110 m²

    PEB D6637 Fauvillers


    3 Chambres 1 Salle de bain

    Nous contacter !