Vendu
PEB C
Partager

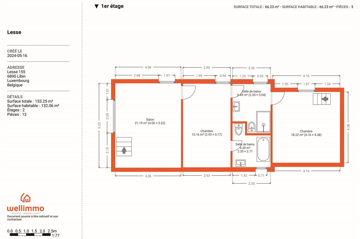
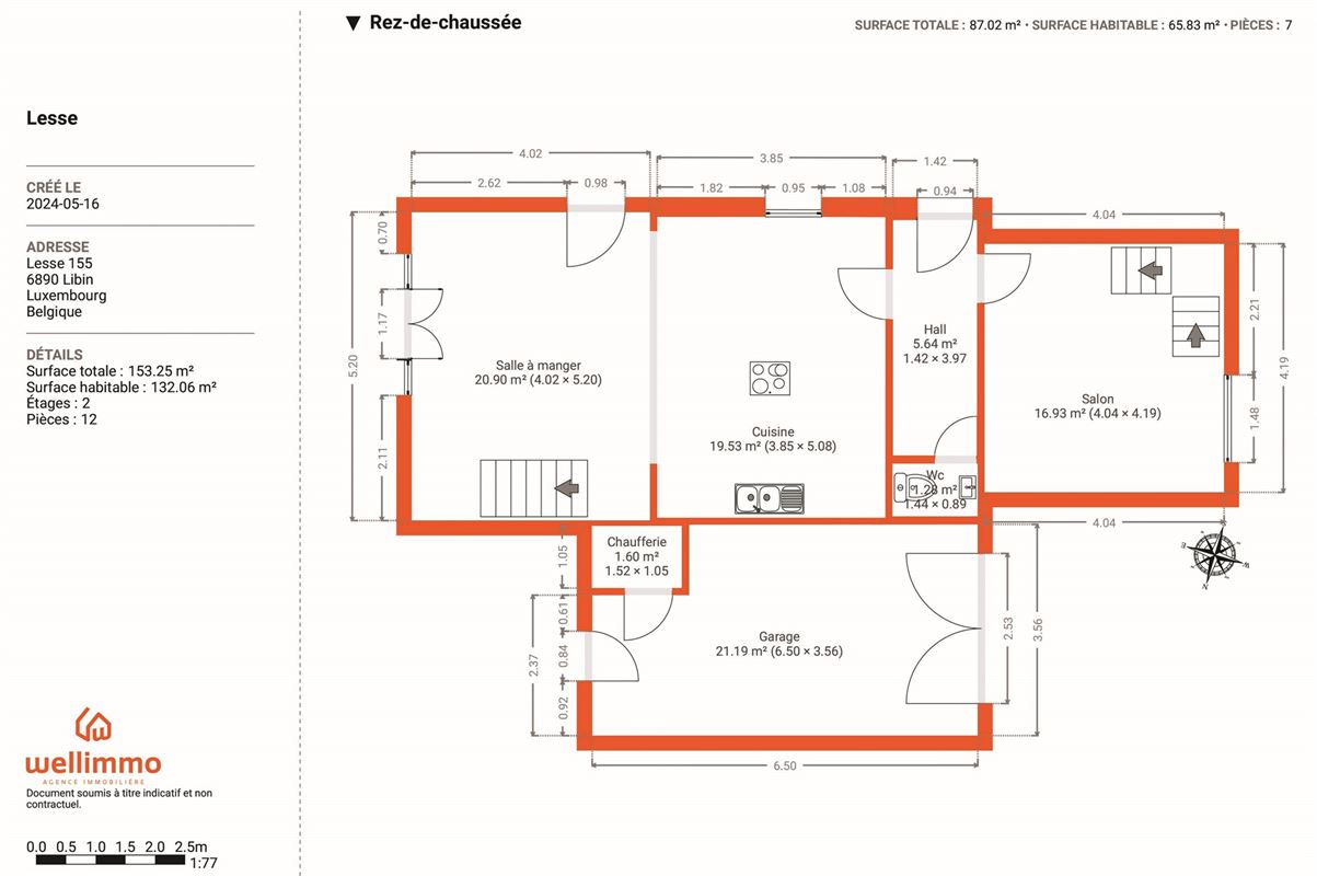
Maison, 132 m²

155 Lesse B-6890 Redu

2 Chambres 2 Salle de bain 920 m² Terrain



Général

  • Nombre de chambre : 2

  • Nombre de salle de bain : 2

  • Jardin : Oui

  • Surface du jardin : 920 m²

  • Garage : Oui

  • Terrasse : Oui

  • Parking : Non

  • Surface habitable : 132 m²

Intérieur

  • État général : Rénové

  • Toilettes : 3

  • Cuisines : Cuisine équipée

  • Châssis : PVC

  • Vitrage : Double vitrage

  • Chauffage (type) : C.C. au gaz

  • Chauffage (ind/coll) : Individuel

  • Cave : Non

  • Grenier : Oui

Raccordement

  • Egout : Non

  • Électricité : Non

  • Eau : Non

Environnement

  • Orientation : Nord

Extérieur

  • Toiture : Toiture en pente

  • Année de construction : 1875

  • Façade : 4 façades

Consommation et performance énergétique

  • E spec (Kwh/m²/an) : 214

  • E totale (Kwh/an) : 38708

  • Label PEB : C

  • Expiration du certificat énergétique : 13/05/2034

  • Code unique : 20240513018503

Calculer les droits d'enregistrement

Charmante habitation entièrement rénovée, face à la Lesse.

REZ: hall d'entrée avec wc séparé desservant à gauche le salon aménagé dans l'ancien corps de logis (murs en pierre apparente, anciennes poutres, cheminée... charme garanti !), à droite une spacieuse cuisine très bien équipée/salle à manger offrant de belle ouvertures sur la terrasse et le jardin.

REZ+1: 2 chambres, une salle de bain (baignoire, lavabo et WC), une salle de douche (douche, lavabo et WC), un espace de salon/bibliothèque d'où la vue est absolument magnifique !

INFOS+:

- situation idéale, dans un hameau calme du village de Redu (Village du Livre), en face de la Lesse,

- maison entièrement rénovée avec des matériaux de qualité et beaucoup de goût, vous n'avez qu'à poser vos valises !

- électricité conforme (certificat valable jusqu'en 2038),

- châssis en PVC double vitrage (2012), en excellent état d'entretien,

- chauffage central au gaz, installation conforme, citerne enterrée de 2950 litres, une commande à distance permet de démarrer la chaudière avant votre arrivée !

- toiture en excellent état, isolée (recticel de 12 cm),

- les murs crépis sont également isolés (10 cm),

- terrasses très bien orientées, jardin clos, aménagé dernièrement,

- garage (permis obtenu en 1984),

- à 6 km de la sortie E411 (à 125 km de Bruxelles), 2 km de Redu (Village du Livre, Musée, galerie d'art, restaurants etc.) et 2 km de Maissin (commerce, boulangerie, station-service),

- RC net 410 euros, la réduction des droits d'enregistrements est donc possible (sous réserve de la confirmation du revenu cadastral par l'administration fiscale).

Le propriétaire vendeur du bien dispose de la faculté, de manière totalement libre et autonome, de vendre ou ne pas vendre. S’il décide de vendre, il n’est nullement tenu de retenir l’offre la plus élevée mais choisit celle qui lui convient le mieux au regard de ses propres critères (montant de l’offre, conditions suspensives, délai de signature,…).

 

Calculer les droits d'enregistrement

Lesse.jpg
Lesse-19.jpg
Lesse-24.jpg
Lesse-39.jpg
Lesse-22.jpg
Lesse-7.jpg
Lesse-10.jpg
Lesse-36.jpg
Lesse-32.jpg
Lesse-34.jpg
Lesse-28.jpg
Lesse-2.jpg
Lesse-12.jpg
Lesse-21.jpg
Lesse-15.jpg
Lesse-18.jpg
Lesse-20.jpg
Lesse-13.jpg
Lesse-26.jpg
Plan_Rdc.jpg
Lesse-3.jpg
Lesse-29.jpg
Lesse-27.jpg
Lesse-33.jpg
Lesse-30.jpg
Lesse-35.jpg
Lesse-4.jpg
Plan_1er.jpg
Lesse-5.jpg
Lesse-9.jpg

Visitez ce bien avec BASTIEN Véronique

LESSE 155 REDU


    Découvrez nos biens similaires

    Nous contacter !